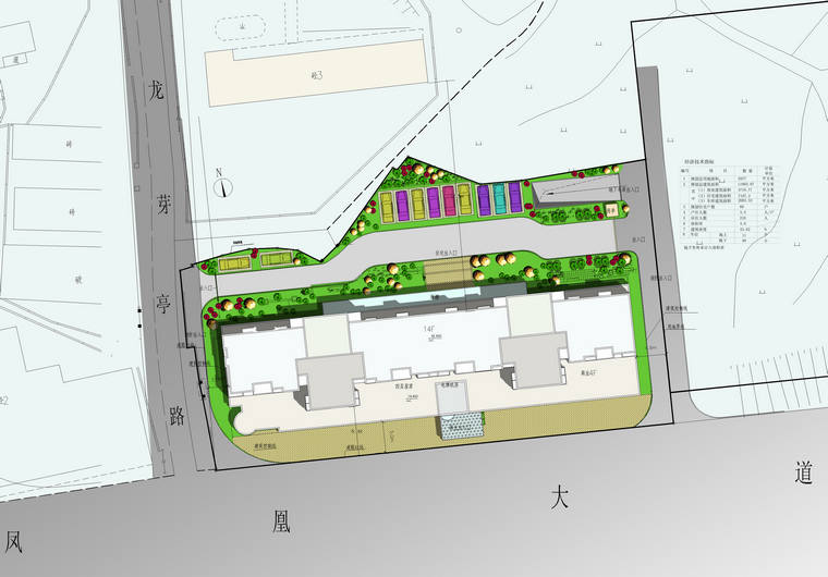
總平面圖
地 址:上饒市廣信區(qū)天佑大道上東城北區(qū)18棟 郵政編碼:334000
電 話:0793-8232626 8226111 8208088 8211688 傳真:0793-8226111
Copyright? 2015 江西建亨實業(yè)有限公司 All Rights Reserved
贛ICP備13004686號-1 贛公網安備36110302000117號